Seyssins (38180) Maison 3 chambres 98m² 38180 Seyssins

Réf : V6870098248 379 000 €
SEYSSINS - L'agence Comptoir Immobilier de FRANCE , vous propose cette maison individuelle sur une parcelle de 867m² dans un secteur calme et très prisé.
Venez découvrir cette charmante maison à rénover située sur les hauteurs de la commune de Seyssins, au calme avec vue dégagée sur les montagnes.
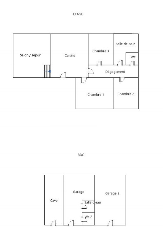
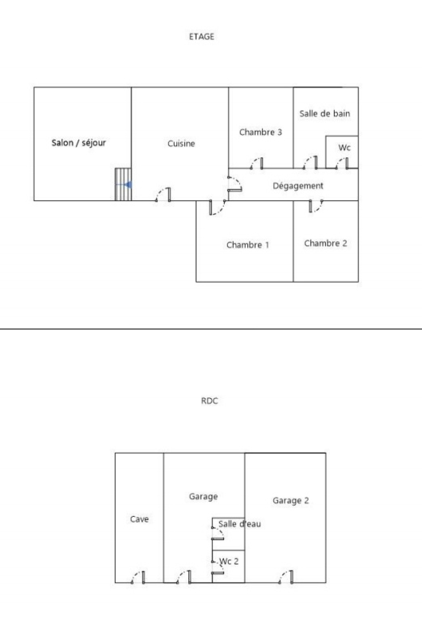
- La partie habitation est élevée sur sous-sol accessible par des escaliers extérieurs.
- L'entrée s'ouvre sur un hall donnant directement dans la cuisine équipée avec un accès au salon/salle à manger de 34m² (extension de 1994), les nombreuses ouvertures apportent une belle luminosité.
L'extension, spacieuse et conviviale, sera le lieu idéal pour rassembler vos proches et passer d'agréables moments autour d'un poêle à bois.
- Un couloir dessert 3 chambres, une salle de bains équipée d'une baignoire d'angle et un wc indépendant.
Avec son sous-sol complet, cette propriété offre un vaste espace qui répondra à tous vos besoins de rangement et d'aménagement.
( Voir plans en photos )
À l'extérieur, vous profiterez d'un charmant jardin où vous pourrez vous détendre et profiter des beaux jours.
Certains travaux de rafraîchissement et d'isolation sont à prévoir, afin de personnaliser cette maison selon vos goûts et améliorer votre confort.
Contactez-nous dès maintenant pour organiser une visite et découvrir tous les atouts de ce bien.
Taxe Foncière : 1600€ / An
Surface : 98.38m² Carrez + 70m² en sous-sol
( soit 168,38m² de surface utile )
Chaudière individuelle gaz récente.
Date de réalisation du diagnostic énergétique : 12/11/2024
Montant estimé des dépenses annuelles d'énergie pour un usage standard : entre 2750€ et 3770€ pour 2023.
(abonnements compris)
Consommation énergétique : 395 kWh/m²/an
Emission de gaz à effet de serre : 53 CO2/m²/an
Honoraires à la charge du vendeur.
Cette annonce vous est proposée par José DOS SANTOS - Tel : O6 09 27 23 45
N° RSAC: 818 398 232, Enregistré au Greffe du tribunal de commerce de GRENOBLE.

Contactez-nous dès maintenant pour organiser une visite et découvrir tous les atouts de ce bien.

COMPTOIR IMMOBILIER DE FRANCE - Plus d'informations sur cif-immo.com

« Les informations sur les risques auxquels ce bien est exposé sont disponibles sur le site Géorisques : www.georisques.gouv.fr »

Annonce rédigée et publiée par un Agent Commercial.


Les informations sur les risques auxquels ce bien est exposé sont disponibles sur le site Géorisques
TRAD_SIROCCO_Caracteristique Valeurs
Code postal 38180
Surface habitable (m²) 98,38 m²
surface terrain 867 m²
Surface loi Carrez (m²) 98,38 m²
Nombre de chambre(s) 3
Nombre de pièces 6
Nombre de niveaux 2
Vue vue dégagée
TRAD_SIROCCO_Caracteristique Valeurs
Nb de salle de bains 1
Nb de salle d'eau 1
Cuisine Séparée
Type de cuisine SEMI-EQUIPEE
Mode de chauffage Gaz
Type de chauffage TRAD_TYPE_CHAUFF_CHAUDIERE
Format de chauffage Individuel
Interphone NON
Visiophone NON
Terrasse OUI
Nombre de garage 2
Nombre de parking 2
Exposition Est-Ouest
Année de construction 1950
Terrain arboré OUI
TRAD_SIROCCO_Caracteristique Valeurs
Copropriété NON
plan de sauvegarde NON
TRAD_SIROCCO_Caracteristique Valeurs
Prix de vente 379 000 €
Les honoraires d'agence seront intégralement à la charge du vendeur  
Taxe foncière annuelle 1 600 €
DPE GES

Logement à consommation énergétique excessive : classe F

Montant estimé des dépenses annuelles d'énergie pour un usage standard est compris entre 2 750 € et 3 770 € . Prix moyens des énergies indexés sur les années 2021, 2022 et 2023 (abonnements compris).

  • Commerces et santé
  • Loisirs
  • Ecoles
  • Transports
  • Pratique

Nos outils

Imprimer
Intéressé(e) par Ce bien ?

* Champ obligatoire

Les informations recueillies sur ce formulaire sont enregistrées dans un fichier informatisé par La Boite Immo agissant comme Sous-traitant du traitement pour la gestion de la clientèle/prospects de l'Agence / du Réseau qui reste Responsable du Traitement de vos Données personnelles. La base légale du traitement repose sur l'intérêt légitime de l'Agence / du Réseau. Elles sont conservées jusqu'à demande de suppression et sont destinées à l'Agence / au Réseau. Conformément à la loi « informatique et libertés », vous disposez des droits d’accès, de rectification, d’effacement, d’opposition, de limitation et de portabilité de vos données. Vous pouvez retirer votre consentement à tout moment en contactant directement l’Agence / Le Réseau. Consultez le site https://cnil.fr/fr pour plus d’informations sur vos droits. Si vous estimez, après avoir contacté l'Agence / le Réseau, que vos droits « Informatique et Libertés » ne sont pas respectés, vous pouvez adresser une réclamation à la CNIL. Nous vous informons de l’existence de la liste d'opposition au démarchage téléphonique « Bloctel », sur laquelle vous pouvez vous inscrire ici : https://www.bloctel.gouv.fr Dans le cadre de la protection des Données personnelles, nous vous invitons à ne pas inscrire de Données sensibles dans le champ de saisie libre.
Ce site est protégé par reCAPTCHA, les Politiques de Confidentialité et les Conditions d'Utilisation de Google s'appliquent.

Ces biens peuvent aussi vous intéresser
Tullins (38210)

Maison avec piscine, 3 chambres, 110m² habitables 38210 Tullins

Tullins (38210)

Isère (38) - A Vendre Tullins - Maison avec vue Vercors

Nous suivre sur