Saint-Égrève (38120) Isère (38) - A Vendre St Egrève - Appartement T4 82m2 1er étage - Bien Loué - Terrasse - Garage

Réf : V1850097182 245 000 €

NOUVEAUTÉ - Comptoir Immobilier de France Grenoble --- Appartement avec possibilité de garage (en sus : +20k) ---

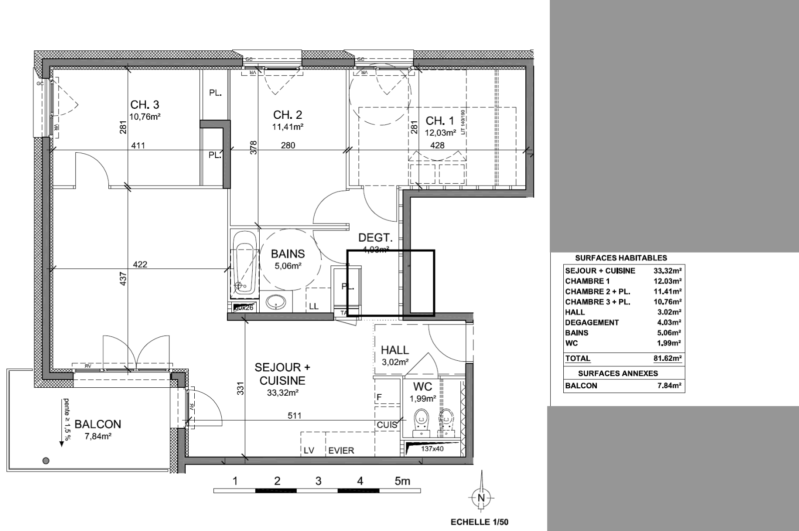
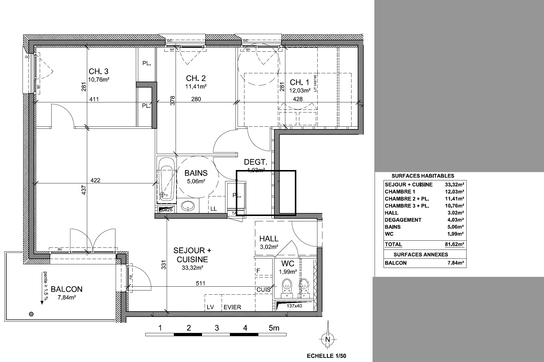
Dans une belle résidence récente livrée en 2019 avec ascenseur, découvrez cet appartement 4 pièces de 82 m² situé au 1er étage, avec terrasse exposée Sud-Ouest de 8 m².

L’espace de vie de 33 m² comprend une cuisine ouverte sur le séjour, offrant un cadre convivial et moderne.

L’appartement dispose de trois chambres (11 à 12 m² chacune, dont 2 avec placard), d’une salle de bains et de toilettes séparées.

Actuellement loué jusqu’en février 2029, il constitue un investissement locatif.

Emplacement stratégique : à seulement 2 min à pied de l’arrêt de bus Gavanière (ligne 22) desservant Grenoble et du tram E (arrêt La Pinéa). Commerces, écoles et commodités à proximité immédiate.

Un cadre de vie calme et verdoyant, tout en restant proche du dynamisme grenoblois.

Loyer encadré : jusqu’à 1082,40 € HC/mois

Idéal pour un premier investissement ou pour préparer un projet à long terme, ce bien allie confort moderne et emplacement recherché.

Honoraires charge vendeur / Chauffage collectif gaz / DPE : C / Charges annuelles : 1675eur avec garage incluant ascenseur, chauffage, eau chaude soit environ 140eur/mois / Possibilité de garage en sus : +20000eur

Pour plus d'informations, vous pouvez me contacter directement au O6 08 68 19 99

TRAD_SIROCCO_Caracteristique Valeurs
Code postal 38120
Surface habitable (m²) 81,62 m²
Surface loi Carrez (m²) 81,62 m²
Nombre de chambre(s) 3
Nombre de pièces 4
Etage 1
Ascenseur OUI
TRAD_SIROCCO_Caracteristique Valeurs
Nb de salle de bains 1
Cuisine Américaine
Type de cuisine Equipée
Mode de chauffage Gaz
Type de chauffage TRAD_TYPE_CHAUFF_CHAUDIERE
Format de chauffage Collectif
Terrasse OUI
Nombre de garage 1
Exposition Sud-Ouest
Année de construction 2019
TRAD_SIROCCO_Caracteristique Valeurs
Copropriété OUI
Lot n° 106
Quote Part annuelle des charges 1 767 €
TRAD_SIROCCO_Caracteristique Valeurs
Prix de vente 245 000 €
Les honoraires d'agence seront intégralement à la charge du vendeur  
Charges 140 €
Taxe foncière annuelle 1 600 €
DPE GES

Montant estimé des dépenses annuelles d'énergie pour un usage standard est compris entre 430 € et 630 € . Prix moyens des énergies indexés sur les années 2021, 2022 et 2023 (abonnements compris).

  • Commerces et santé
  • Loisirs
  • Ecoles
  • Transports
  • Pratique

Nos outils

Imprimer
Intéressé(e) par Ce bien ?

* Champ obligatoire

Les informations recueillies sur ce formulaire sont enregistrées dans un fichier informatisé par La Boite Immo agissant comme Sous-traitant du traitement pour la gestion de la clientèle/prospects de l'Agence / du Réseau qui reste Responsable du Traitement de vos Données personnelles.
La base légale du traitement repose sur l’intérêt légitime de l'Agence / du Réseau.
Elles sont conservées jusqu'à demande de suppression et sont destinées à l'Agence / au Réseau.
Conformément à la loi « informatique et libertés », vous pouvez exercer votre droit d'accès aux données vous concernant et les faire rectifier en contactant l'Agence / le Réseau.
Si vous estimez, après avoir contacté l'Agence / le Réseau, que vos droits « Informatique et Libertés » ne sont pas respectés, vous pouvez adresser une réclamation à la CNIL.
Nous vous informons de l’existence de la liste d'opposition au démarchage téléphonique « Bloctel », sur laquelle vous pouvez vous inscrire ici : https://www.bloctel.gouv.fr 
Dans le cadre de la protection des Données personnelles, nous vous invitons à ne pas inscrire de Données sensibles dans le champ de saisie libre
Ce site est protégé par reCAPTCHA, les Politiques de Confidentialité et les Conditions d'Utilisation de Google s'appliquent.

Ces biens peuvent aussi vous intéresser
Rives (38140)

Isère (38) - A VENDRE- Appartement dernier étage

Exclusif
Grenoble (38000)

GRENOBLE Aigle - Spacieux T3 rénové avec balcons

Nous suivre sur