Découvrir le bien

Grenoble (38000) GRENOBLE Mutualiste - T4

Réf : FAV2500000246

APPARTEMENT SOUS OFFRE - D'autres Appartements à la vente à venir!

Un appartement à vendre ou estimer? N'hésitez pas à nous contacter!

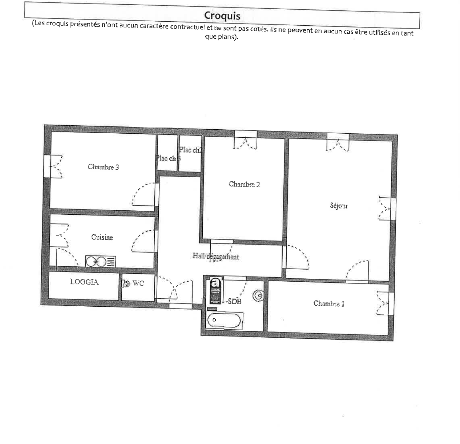
Découvrez ce charmant T4 de 65m² idéalement situé dans le quartier recherché Mutualiste, à Grenoble. Entièrement rénové, cet appartement allie confort et emplacement de choix, sans aucun travaux à prévoir. Il se situe au 1er étage d'une copropriété à jour de travaux. L'appartement est traversant et bénéficie d'une belle luminosité.

En entrant, vous serez accueilli par un hall d'entrée qui dessert harmonieusement chaque espace de vie. Vous trouverez une pièce de vie lumineuse parfaite pour vos moments de détente, ainsi qu'une cuisine indépendante et fonctionnelle, de 3 chambres spacieuses, offrant de multiples possibilités d'aménagement, ainsi qu'une buanderie pratique pour votre quotidien.

Une cave privative vient compléter ce bien, offrant un espace de stockage supplémentaire.

Ce bien est parfait pour :

  • Investisseurs en quête d'un placement rentable dans un secteur dynamique, idéal pour de la colocation, 8,5% de renta.
  • Premier achat, pour profiter d'un cadre de vie agréable, proche des commodités et des transports.

Ne manquez pas cette opportunité rare dans un secteur aussi recherché ! Contactez Claudia SCHIAVONE au O6 77 71 12 03 pour plus d'informations et organiser une visite.


Les informations sur les risques auxquels ce bien est exposé sont disponibles sur le site Géorisques
TRAD_SIROCCO_Caracteristique Valeurs
Code postal 38000
Surface habitable (m²) 65 m²
Surface loi Carrez (m²) 65,09 m²
Nombre de chambre(s) 3
Nombre de pièces 4
Etage 1
Ascenseur OUI
TRAD_SIROCCO_Caracteristique Valeurs
Nb de salle de bains 1
Cuisine Séparée
Type de cuisine Equipée
Mode de chauffage Electrique
Type de chauffage Radiateur
Format de chauffage Individuel
Cave OUI
Surface cave (m²) 4
Exposition Est-Ouest
Année de construction 1961
TRAD_SIROCCO_Caracteristique Valeurs
Copropriété OUI
Lot n° 104
nombre de lots 58
Quote Part annuelle des charges 1 100 €
plan de sauvegarde NON
statut du syndic pas de procédure en cours
TRAD_SIROCCO_Caracteristique Valeurs
Taxe foncière annuelle 1 622 €
DPE GES

Montant estimé des dépenses annuelles d'énergie de ce logement pour un usage standard est compris entre 1 420 € et 1 950 € . 2021 étant l'année de référence des prix de l'énergie utilisés pour établir cette estimation.

  • Commerces et santé
  • Loisirs
  • Ecoles
  • Transports
  • Pratique

Nos outils

Imprimer
Nous suivre sur