Grenoble (38000) Isère (38) - A Vendre Grenoble - Hyper-Centre - Studio 22m2 - 2ème étage - Rue Brocherie

Réf : V1850097829 85 000 €
Comptoir Immobilier de France Grenoble : Idéal Investisseur !
Grenoble Hyper Centre – Rue Brocherie

À deux pas de la Place aux Herbes, dans un secteur très recherché du centre historique, proche de toutes commodités (commerces, tramway, bus, écoles, restaurants).

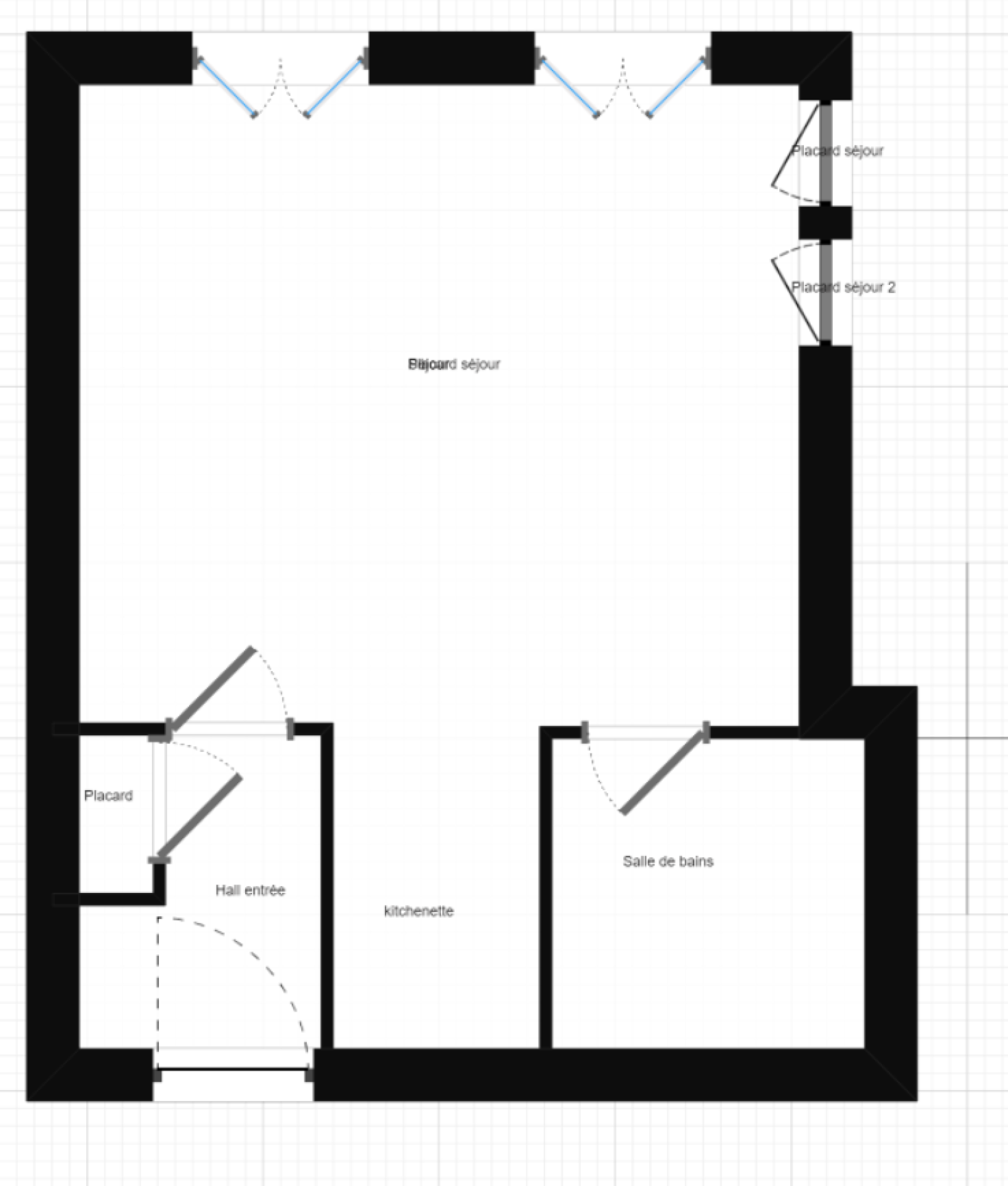
Je vous propose ce studio de 22 m², situé au 2ème étage sans ascenseur d’un immeuble ancien sécurisé avec interphone.

Il se compose d'une entrée avec placard de rangement, d'une pièce de vie lumineuse, un coin cuisine équipé (machine à laver), une salle de bains avec baignoire et wc.

Idéal investissement locatif

Appartement déjà loué 470 € / mois, offrant une rentabilité immédiate.

Taxe foncière: 698€ / Faible charges de copropriété: 400€/an comprenant les charges communes : entretien, assurance

Emplacement premium dans le centre historique de Grenoble, à proximité immédiate du tramway, commerces et universités.

À visiter rapidement.

CIF GRENOBLE GRESIVAUDAN - Lucie RIONDEL O6 O8 68 19 99
TRAD_SIROCCO_Caracteristique Valeurs
Code postal 38000
Surface habitable (m²) 22,54 m²
Nombre de pièces 1
Etage 2
TRAD_SIROCCO_Caracteristique Valeurs
Nb de salle de bains 1
Cuisine Américaine
Type de cuisine Equipée
Mode de chauffage Electrique
Type de chauffage Radiateur
Format de chauffage Individuel
Interphone NON
Terrasse NON
Murs mitoyens 2
Cave NON
Année de construction 1940
TRAD_SIROCCO_Caracteristique Valeurs
Copropriété NON
Quote Part annuelle des charges 400 €
plan de sauvegarde NON
statut du syndic pas de procédure en cours
TRAD_SIROCCO_Caracteristique Valeurs
Prix de vente 85 000 €
Les honoraires d'agence seront intégralement à la charge du vendeur  
Charges 34 €
Taxe foncière annuelle 698 €
DPE GES

Logement à consommation énergétique excessive : classe F

Montant estimé des dépenses annuelles d'énergie de ce logement pour un usage standard est compris entre 550 € et 700 € . 2021 étant l'année de référence des prix de l'énergie utilisés pour établir cette estimation.

  • Commerces et santé
  • Loisirs
  • Ecoles
  • Transports
  • Pratique

Nos outils

Imprimer
Intéressé(e) par Ce bien ?

* Champ obligatoire

Les informations recueillies sur ce formulaire sont enregistrées dans un fichier informatisé par La Boite Immo agissant comme Sous-traitant du traitement pour la gestion de la clientèle/prospects de l'Agence / du Réseau qui reste Responsable du Traitement de vos Données personnelles. La base légale du traitement repose sur l'intérêt légitime de l'Agence / du Réseau. Elles sont conservées jusqu'à demande de suppression et sont destinées à l'Agence / au Réseau. Conformément à la loi « informatique et libertés », vous disposez des droits d’accès, de rectification, d’effacement, d’opposition, de limitation et de portabilité de vos données. Vous pouvez retirer votre consentement à tout moment en contactant directement l’Agence / Le Réseau. Consultez le site https://cnil.fr/fr pour plus d’informations sur vos droits. Si vous estimez, après avoir contacté l'Agence / le Réseau, que vos droits « Informatique et Libertés » ne sont pas respectés, vous pouvez adresser une réclamation à la CNIL. Nous vous informons de l’existence de la liste d'opposition au démarchage téléphonique « Bloctel », sur laquelle vous pouvez vous inscrire ici : https://www.bloctel.gouv.fr Dans le cadre de la protection des Données personnelles, nous vous invitons à ne pas inscrire de Données sensibles dans le champ de saisie libre.
Ce site est protégé par reCAPTCHA, les Politiques de Confidentialité et les Conditions d'Utilisation de Google s'appliquent.

Ces biens peuvent aussi vous intéresser
Exclusif
Grenoble (38000)

Dépt ISERE(38) - A VENDRE - Studio meublé de 20 m², Grenoble,...

Exclusif
Grenoble (38000)

Dépt ISERE(38) - A VENDRE - Studio loué – Grenoble Berriat / Gare –...

Nous suivre sur