Vendu
Découvrir le bien

Bernin (38190) DPT Isère (38) - Plateau à aménager

Réf : FAV2500000377

En Exclusivité Comptoir Immobilier de France Grenoble - Grésivaudan -

BIEN SOUS OFFRE - D'autres Appartements à la vente à venir!

Un appartement à vendre ou estimer? N'hésitez pas à nous contacter!

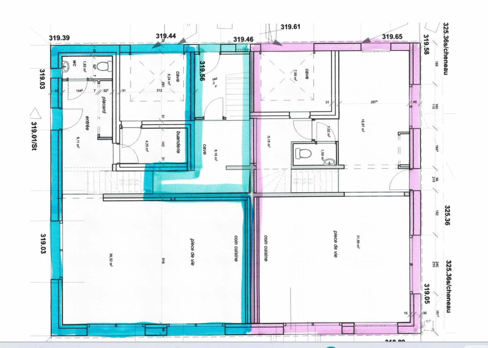
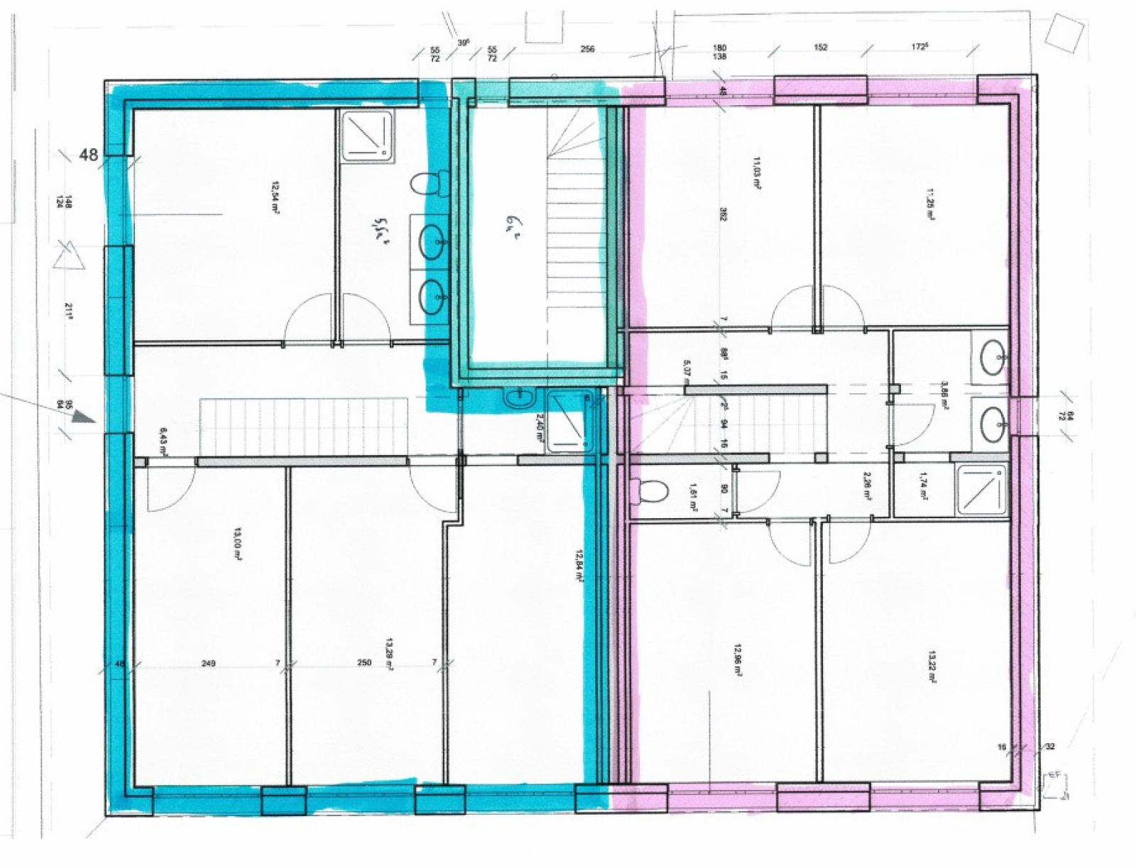
Nouveau Projet - BERNIN- PLATEAU A AMENAGER - Livré BRUT - (Viabilisation, facades et toit neuf)

L'acheteur aura en charge le second oeuvre et les finitions intérieures - Possibilité d'acheter le lot clé en main entièrement terminé en choisisant les matérieux.

Proche des écoles, commerces et des arrêts de bus - Bien Intermédiaire Appartement / Maison de 115m2 avec jardin de 100m situé à Bernin.

Maison réhabilitée en 3 lots dont un T4 de 120m2 en dernier étage et deux T5 en duplex de 115M2 en rez de jardin.

Visites 3D disponibles des autres biens réalisés dans le Grésivaudan et visite sur place possible après envoi des plans du projet par mail - > Possibilité d'achat en plateau à aménager ou d'acheter clé en main avec choix des matériaux. -

Honoraires charge vendeur CIF GRENOBLE GRESIVAUDAN - Pascal AMALRIC - 06 26 56 64 16 - Agent commercial RSAC N° 534 539 416 - - Plus d'informations sur cif-grenoble-gresivaudan.com (réf. 15805)

TRAD_SIROCCO_Caracteristique Valeurs
Code postal 38190
Surface habitable (m²) 115 m²
Surface loi Carrez (m²) 115 m²
Nombre de chambre(s) 4
Nombre de pièces 5
Nombre de niveaux 1
TRAD_SIROCCO_Caracteristique Valeurs
Nb de salle de bains 1
Cuisine Américaine
Exposition Est
DPE GES
DPE vierge
  • Commerces et santé
  • Loisirs
  • Ecoles
  • Transports
  • Pratique

Nos outils

Imprimer
Nous suivre sur